ZEST AND BOLT - page 1932-1933

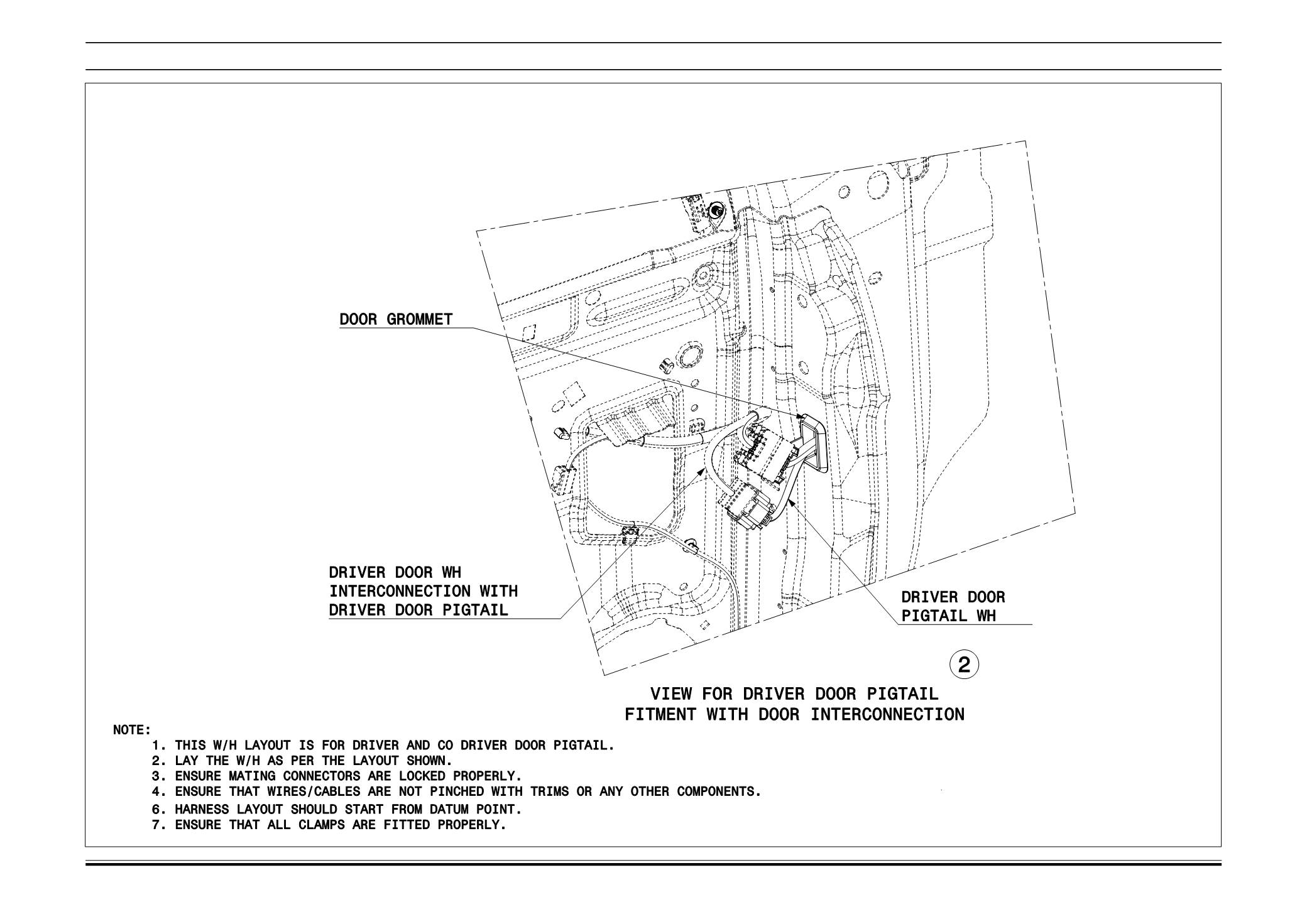
INFO FITMENT DRAWING FOR DRIVER AND CO-DRIVER DOOR PIGTAIL
Electrical
BOLT / ZEST
369
1...,1912-1913,1914-1915,1916-1917,1918-1919,1920-1921,1922-1923,1924-1925,1926-1927,1928-1929,1930-1931 1934-1935,1936-1937,1938-1939,1940-1941,1942-1943,1944-1945,1946-1947,1948-1949,1950-1951,1952-1953,...
Powered by FlippingBook