ZEST AND BOLT - page 1950-1951

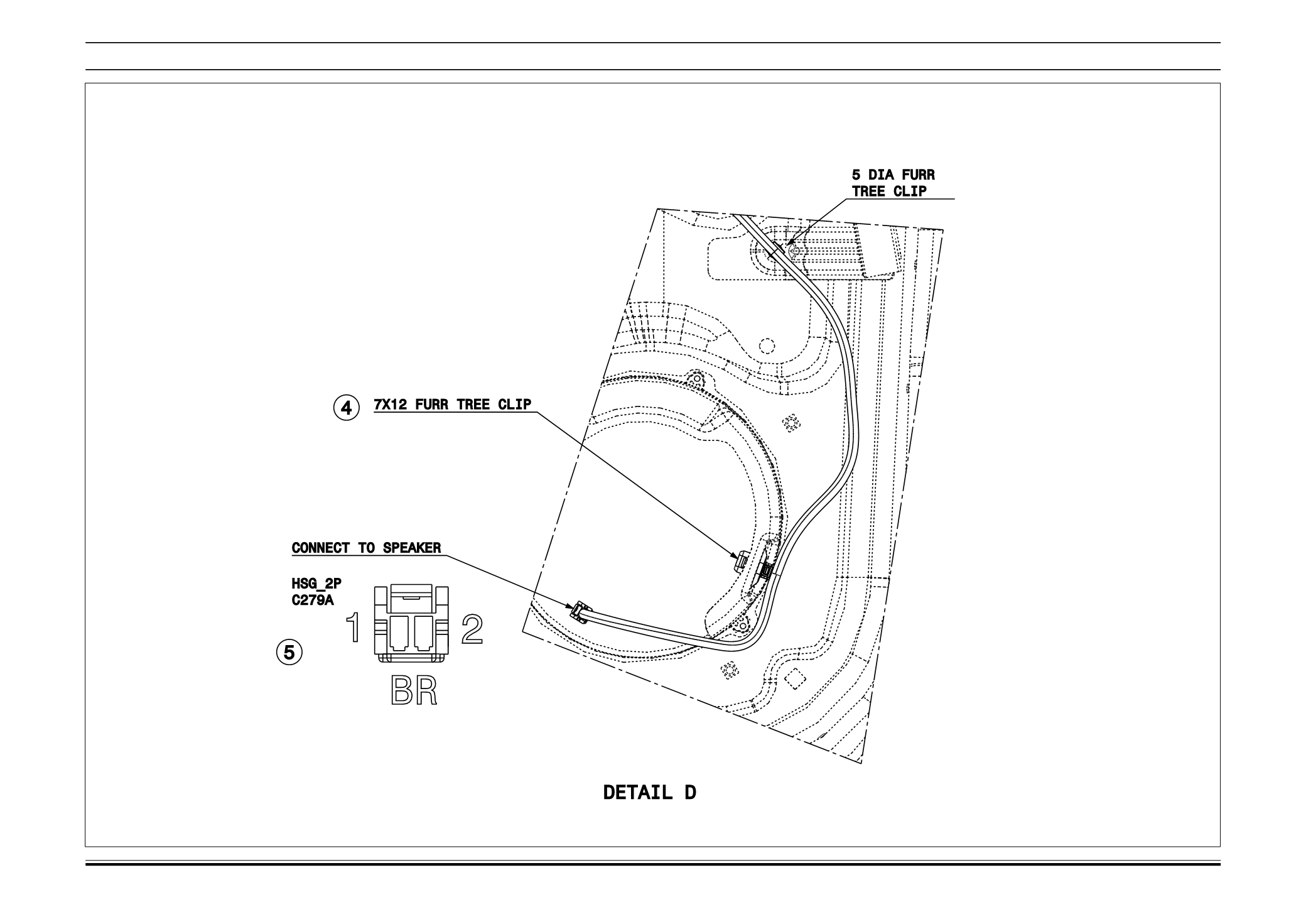
INFO FITMENT DRAWING FOR DRIVER DOOR
Electrical
BOLT / ZEST
378
1...,1930-1931,1932-1933,1934-1935,1936-1937,1938-1939,1940-1941,1942-1943,1944-1945,1946-1947,1948-1949 1952-1953,1954-1955,1956-1957,1958-1959,1960-1961,1962-1963,1964-1965,1966-1967,1968-1969,1970-1971,...
Powered by FlippingBook