ZEST AND BOLT - page 1976-1977

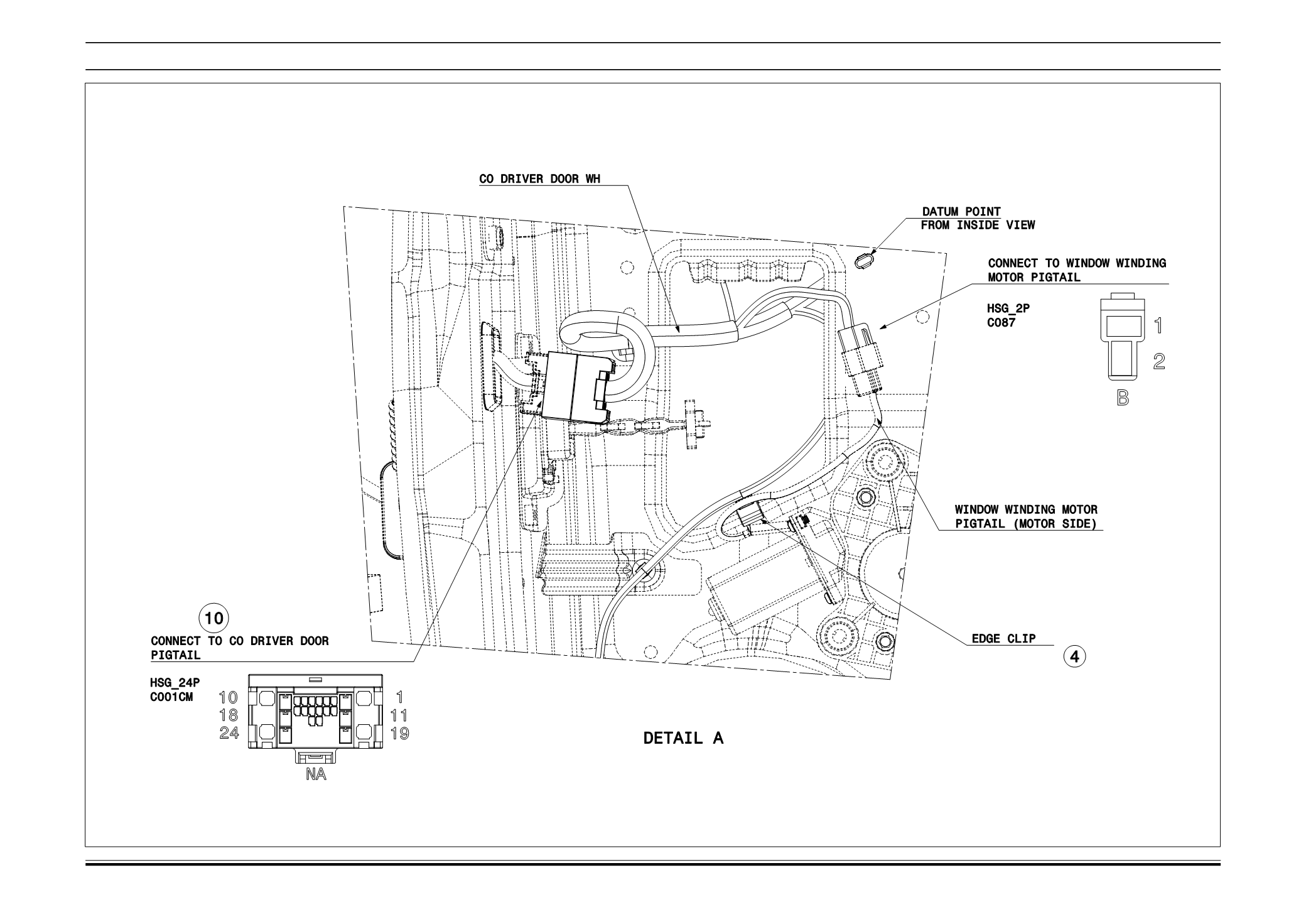
INFO FITMENT DRAWING FOR CO- DRIVER DOOR
391
Electrical
BOLT / ZEST
1...,1956-1957,1958-1959,1960-1961,1962-1963,1964-1965,1966-1967,1968-1969,1970-1971,1972-1973,1974-1975 1978-1979,1980-1981,1982-1983,1984-1985,1986-1987,1988-1989,1990-1991,
Powered by FlippingBook