ZEST AND BOLT - page 1682-1683

Electrical
244
BOLT / ZEST
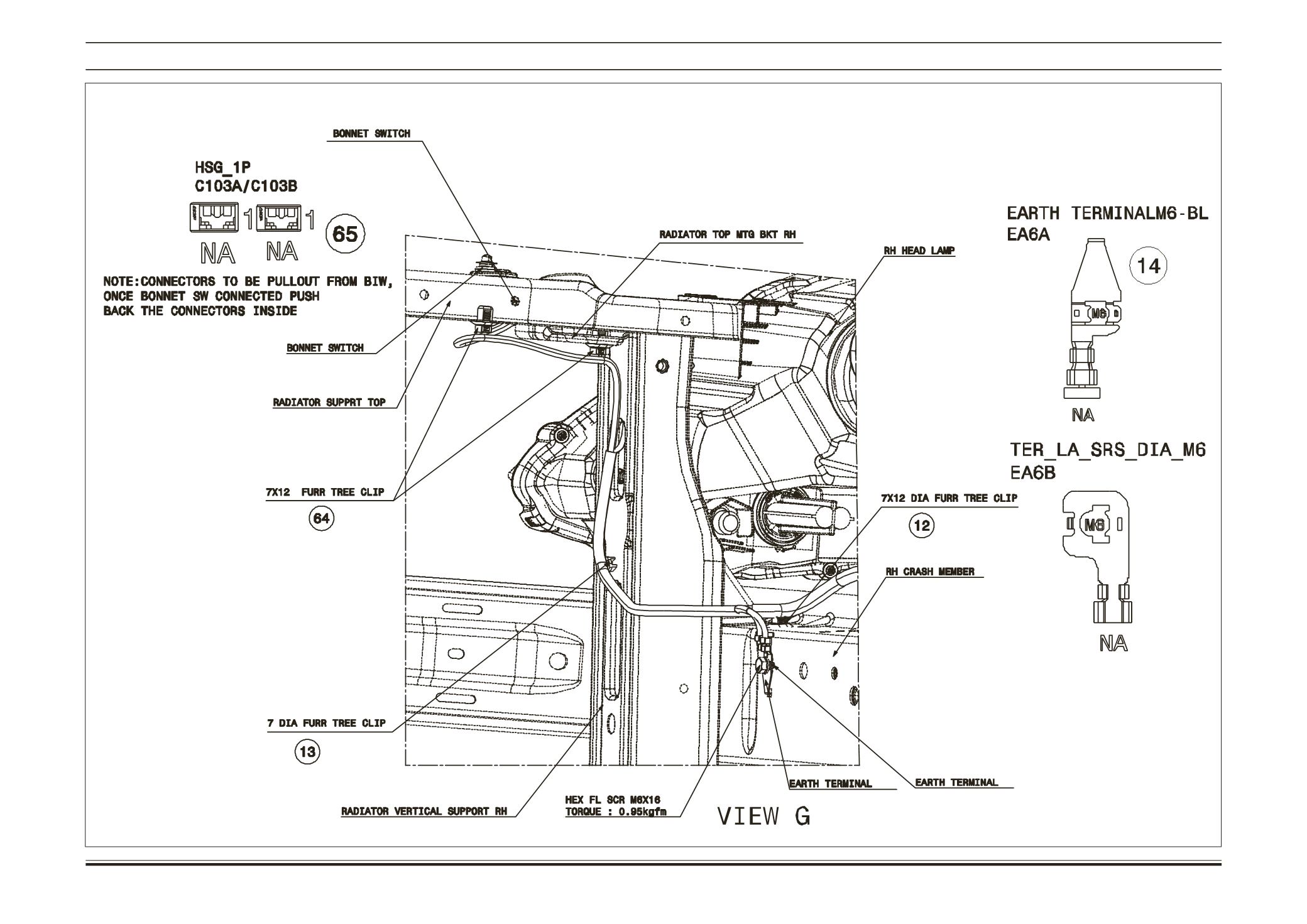
INFO FITMENT DRAWING FOR FRONT WH QUADRAJET
1...,1662-1663,1664-1665,1666-1667,1668-1669,1670-1671,1672-1673,1674-1675,1676-1677,1678-1679,1680-1681 1684-1685,1686-1687,1688-1689,1690-1691,1692-1693,1694-1695,1696-1697,1698-1699,1700-1701,1702-1703,...
Powered by FlippingBook