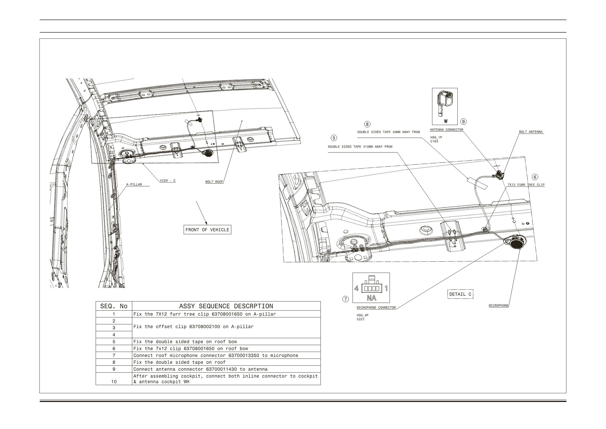
ZEST AND BOLT - page 1654-1655

Electrical
230
BOLT / ZEST
INFO FITMENT DRAWING FOR W/H ANTENNA BOLT ALL &
MICROPHONE CABLES BOLT XM XT ROOF
1...,1634-1635,1636-1637,1638-1639,1640-1641,1642-1643,1644-1645,1646-1647,1648-1649,1650-1651,1652-1653 1656-1657,1658-1659,1660-1661,1662-1663,1664-1665,1666-1667,1668-1669,1670-1671,1672-1673,1674-1675,...
Powered by FlippingBook