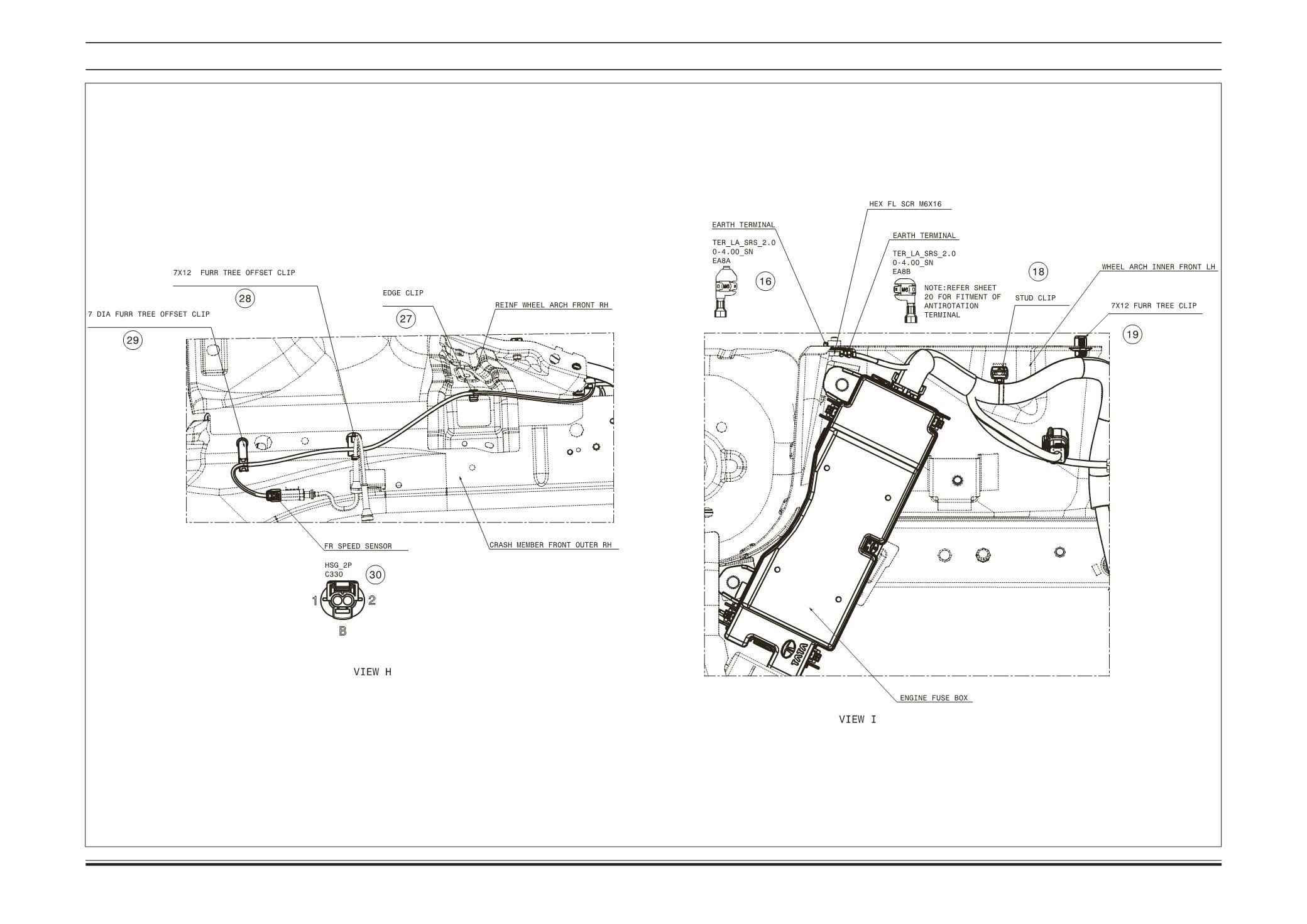
ZEST AND BOLT - page 1538-1539

172
Electrical
BOLT / ZEST
INFO FITMENT DRAWING FOR FRONT WH
AMT
QUADRAJET
1...,1518-1519,1520-1521,1522-1523,1524-1525,1526-1527,1528-1529,1530-1531,1532-1533,1534-1535,1536-1537 1540-1541,1542-1543,1544-1545,1546-1547,1548-1549,1550-1551,1552-1553,1554-1555,1556-1557,1558-1559,...
Powered by FlippingBook