ZEST AND BOLT - page 1498-1499

Electrical
152
BOLT / ZEST
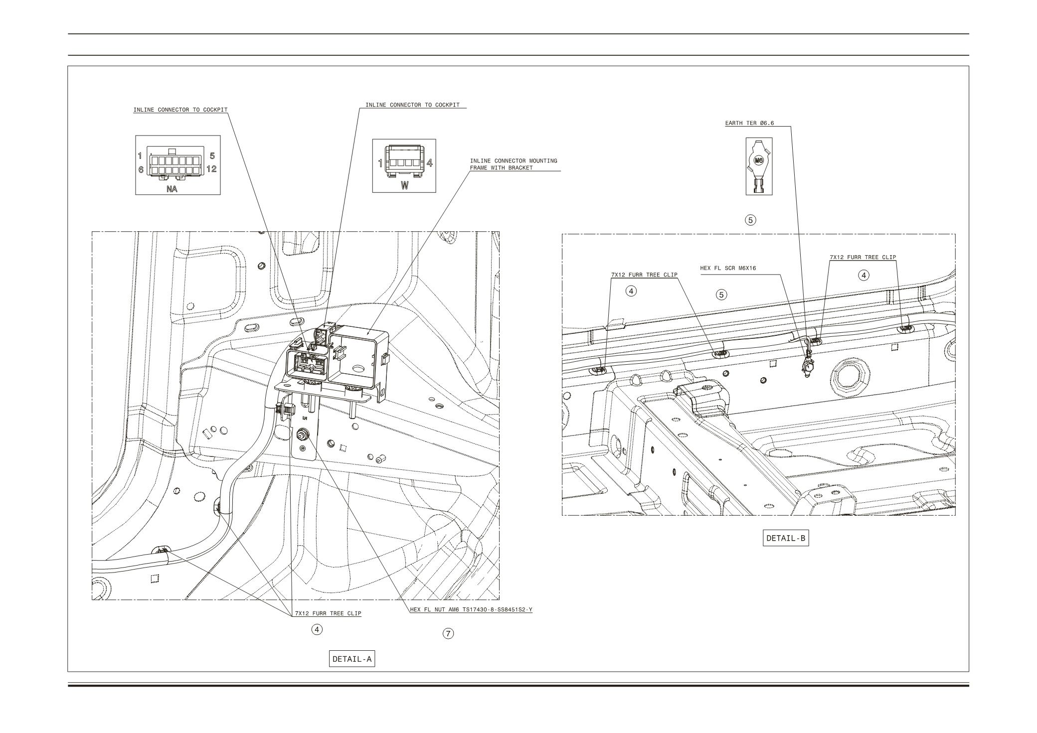
INFO FITMENT DRAWING FOR ZEST FLOOR LH
1...,1478-1479,1480-1481,1482-1483,1484-1485,1486-1487,1488-1489,1490-1491,1492-1493,1494-1495,1496-1497 1500-1501,1502-1503,1504-1505,1506-1507,1508-1509,1510-1511,1512-1513,1514-1515,1516-1517,1518-1519,...
Powered by FlippingBook